Bilocale in vendita

Roma, Via Sebastiano Grandis - Rione Esquilino
€ 349.000
2 locali 2 locali
56 Mq 56 Mq
1 bagno 1 bagno

Bilocale in vendita

Roma, Via Sebastiano Grandis - Rione Esquilino

Descrizione annuncio

QUARTIERE ESQUILINO - ADIACENZE BASILICA DI SANTA CROCE IN GERUSALEMME

A due passi dalla nota basilca, nello storico comprensorio della Ex Cooperativa dei Ferrovieri, proponiamo la vendita di una rara occasione per la zona.

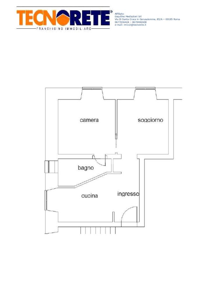
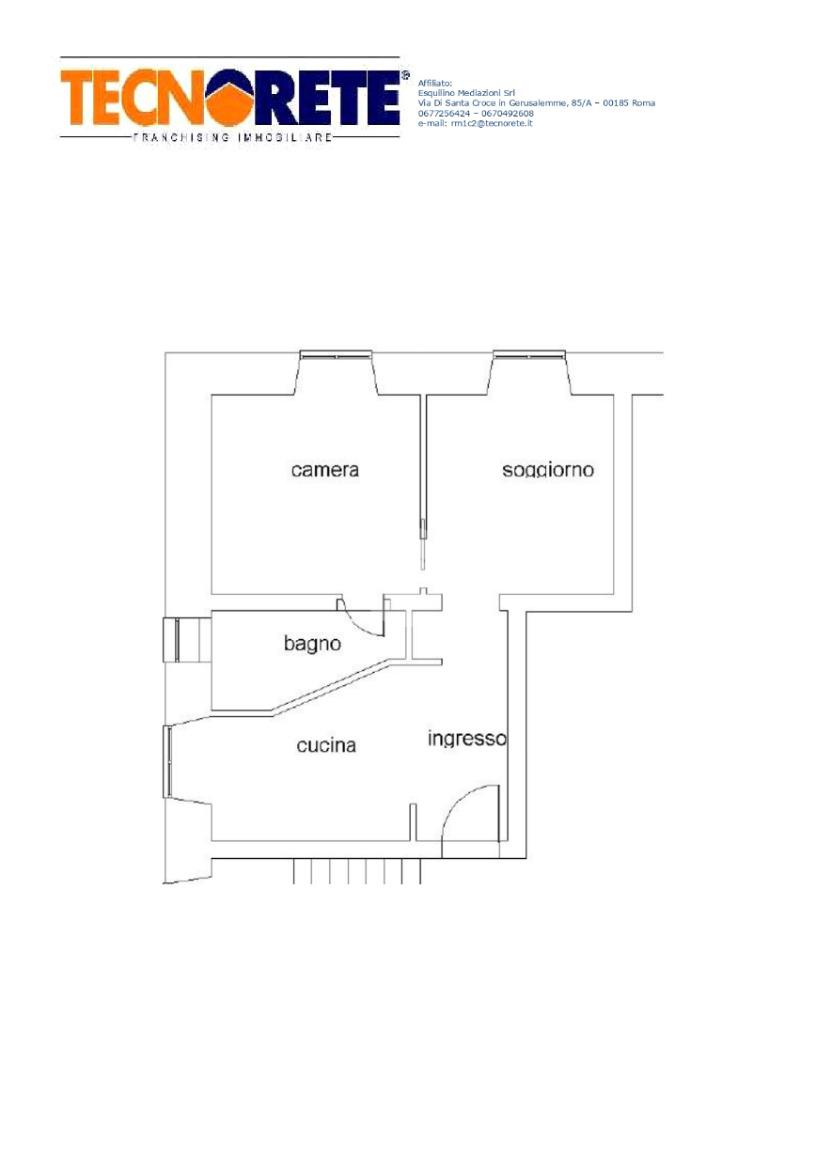
L'appartamento, posto al primo piano servito da ascensore, si compone di ingresso con angolo cottura a vista, soggiorno e camera da letto con bagno en suite.

L'affaccio sul gradevole cortile interno garantisce tranquillità durante tutta la giornata.

Molto buone le condizioni interne.

POSSIBILITA' DI PARCHEGGIO ALL'INTERNO DEL CORTILE CONDOMINIALE FINO AD ESAURIMENTO POSTI.

Ubicato in zona centrale, a due passi da tutti i maggiori servizi di pubblica utilità, l'appartamento si presta ad essere adibito ad abitazione principale per single o giovani coppie oppure come uso investimento da mettere a reddito per brevi o lungi periodi.

Mostra tutto

Nelle vicinanze

Trasporto pubblico Trasporto pubblico
Lodi
Lodi
440 m
San Giovanni
San Giovanni
510 m
Porta Maggiore
Porta Maggiore
340 m
Ponte Casilino
Ponte Casilino
690 m
Piazza Santa Croce in Gerusalemme
Piazza Santa Croce in Gerusalemme
110 m
Ricariche auto elettriche Ricariche auto elettriche
Best Western Hotel President
600 m
Eneldrive Magnagrecia
600 m
Bici & Motori
600 m
Roma Ponte Lungo | EnelX
1,3 Km
Eneldrive Università La Sapienza
1,4 Km
Scuole Scuole
Scuole
500 m
Scuola Elementare Federico Di Donato
690 m
Istituto Santa Maria
690 m
Pontificia Università Antonianum
750 m
Vittorio Central Mosque
790 m
Farmacia Farmacia
Farmacia Strampelli
80 m
Brocchieri
490 m
San Marco
510 m
Parafarmaciapiù
530 m
Angeloni
580 m
Ospedali Ospedali
Azienda Ospedaliera San Giovanni - Addolorata (Presidio Santa Maria)
860 m
Azienda Ospedaliera San Giovanni-Addolorata (Presidio S.Giovanni)
1,0 Km
Pronto Soccorso San Giovanni Addolorata
1,0 Km
Policlinico militare di Roma "Celio"
1,2 Km
Ospedale Militare Celio
1,3 Km
Supermercati Supermercati
Conad City
60 m
Natura Si
460 m
GPS Alimentari
500 m
Tuodì
500 m
Despar
530 m
Negozi Negozi
Pam local
470 m
Negozi
490 m
David Saddler
530 m
Doppelganger
540 m
Doppelgänger
540 m
Bar Bar
Bar Brindisi
410 m
Officine San Giovanni
470 m
Cocktail Bar
530 m
Leon@rd
540 m
Bar Aosta Nouveau Bistrot
680 m
Ristoranti Ristoranti
Osteria la sol fa
100 m
Porto Corallo
100 m
La Pecora Pazza
260 m
Trattoria Pizzeria Porta Maggiore
310 m
La Grotta Azzurra
400 m
Mostra tutto

Caratteristiche

Rif.:
61132228
Piano:
1 di 5 con ascensore (Piano basso)
Camere da letto:
1
Arredamento:
Parziale
Condizionamento:
Assente
Ascensore:
Mostra tutto
Prezzo Prezzo
€ 349.000
Rata mutuo Rata mutuo
€ 1.603 / mese
Spese annue Spese annue
€ 1.200
Proponi il tuo prezzoProponi il tuo prezzo

Classe Energetica

G
G
G
G
G
G
G
G
G
EP globale non rinnovabile:
175.00 kW h/m² anno
EP invernale del fabbricato:
EP estiva del fabbricato:
Anno di costruzione:
1900
Riscaldamento:
Centralizzato
Tipo impianto:
A radiatori
Tipo alimentazione:
Metano

Ti interessa visionare l'immobile?

Fissa un appuntamento  Fissa un appuntamento

Richiedi informazioni

* Questi campi sono obbligatori

Calcola il tuo mutuo

Semplice e senza impegno
Anticipo

( % )
Mutuo

( % )

pochi semplici passi

inserisci i tuoi dati
Questionario completato
Grazie per aver richiesto un appuntamento senza impegno con un nostro Consulente del Credito e Assicurativo.

Hai inserito correttamente tutti i dati necessari e a breve riceverai una e-mail con un link da convalidare per inviare i tuoi dati.
Affiliato
Esquilino Mediazioni Srl
Via Di S.Croce In Gerusalemme, 85/A 00185 Roma (RM)

Il nostro staff


  • Emanuele Testa
    Affiliato

  • Marco Valerio Capodiferro
    Affiliato

  • Marco Giordano
    Affiliato

  • Manuela Giuili
    Coordinatrice
Via Di S.Croce In Gerusalemme, 85/A 00185 Roma (RM)
Zona: Centro Storico - Esquilino - Piazza Vittorio - Santa Croce in Gerusalemme
Mostra su mappa
Orari: lunedi-venerdi 9.00 - 13.00 15.30 - 20.00; sabato 9.00 - 13.00
Affiliato
Esquilino Mediazioni Srl
Via Di S.Croce In Gerusalemme, 85/A 00185 Roma (RM)

2025 Tecnocasa Franchising S.p.A. - P. IVA 08365160152 - Via Monte Bianco 60/A 20089 Rozzano (MI). Ogni agenzia ha un proprio titolare ed è autonoma. Privacy policy | Policy utilizzo | Cookie policy