Bilocale in vendita

Roma, Via Sebastiano Grandis - Rione Esquilino
€ 349.000
2 locali 2 locali
56 Mq 56 Mq
1 bagno 1 bagno

Bilocale in vendita

Roma, Via Sebastiano Grandis - Rione Esquilino

Descrizione annuncio

QUARTIERE ESQUILINO - ADIACENZE BASILICA DI SANTA CROCE IN GERUSALEMME

A due passi dalla nota Basilca, nello storico comprensorio della Ex Cooperativa dei Ferrovieri, proponiamo la vendita di una rara occasione per la zona.

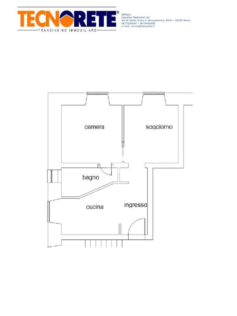
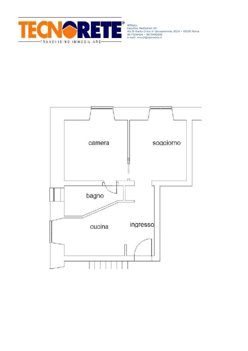
L'appartamento, posto al primo di uno stabile d'epoca piano servito da ascensore e portiere, si compone di ingresso con cucina completa a vista, soggiorno e camera da letto con bagno en suite.

L'affaccio sul gradevole cortile interno garantisce tranquillità e luminosità durante tutta la giornata.

Molto buone le condizioni interne.

POSSIBILITA' DI PARCHEGGIO ALL'INTERNO DEL CORTILE CONDOMINIALE FINO AD ESAURIMENTO POSTI.

Ubicato in zona centrale, a due passi da tutti i maggiori servizi di pubblica utilità, l'appartamento si presta ad essere adibito ad abitazione principale per single o giovani coppie oppure come uso investimento da mettere a reddito per brevi o lungi periodi.

Mostra tutto

Nelle vicinanze

Trasporto pubblico Trasporto pubblico
Lodi
Lodi
440 m
San Giovanni
San Giovanni
490 m
Porta Maggiore
Porta Maggiore
360 m
Ponte Casilino
Ponte Casilino
700 m
Piazza Santa Croce in Gerusalemme
Piazza Santa Croce in Gerusalemme
120 m
Ricariche auto elettriche Ricariche auto elettriche
Eneldrive Magnagrecia
580 m
Best Western Hotel President
590 m
Bici & Motori
620 m
Roma Ponte Lungo | EnelX
1,3 Km
Eneldrive Università La Sapienza
1,5 Km
Scuole Scuole
Scuole
490 m
Istituto Santa Maria
680 m
Scuola Elementare Federico Di Donato
690 m
Pontificia Università Antonianum
740 m
Collegio S. Antonio
790 m
Farmacia Farmacia
Farmacia Strampelli
90 m
Brocchieri
490 m
San Marco
500 m
Parafarmaciapiù
540 m
Angeloni
580 m
Ospedali Ospedali
Azienda Ospedaliera San Giovanni - Addolorata (Presidio Santa Maria)
850 m
Azienda Ospedaliera San Giovanni-Addolorata (Presidio S.Giovanni)
990 m
Pronto Soccorso San Giovanni Addolorata
1,0 Km
Policlinico militare di Roma "Celio"
1,2 Km
Ospedale Militare Celio
1,3 Km
Supermercati Supermercati
Conad City
70 m
Natura Si
450 m
GPS Alimentari
490 m
Tuodì
500 m
Despar
530 m
Negozi Negozi
Pam local
460 m
Negozi
500 m
David Saddler
520 m
Doppelganger
530 m
Doppelgänger
530 m
Bar Bar
Bar Brindisi
390 m
Officine San Giovanni
450 m
Leon@rd
540 m
Cocktail Bar
540 m
Bar Aosta Nouveau Bistrot
670 m
Ristoranti Ristoranti
Osteria la sol fa
110 m
Porto Corallo
110 m
La Pecora Pazza
270 m
Trattoria Pizzeria Porta Maggiore
320 m
La Grotta Azzurra
390 m
Mostra tutto

Caratteristiche

Rif.:
61148576
Piano:
1 di 5 con ascensore (Piano basso)
Camere da letto:
1
Arredamento:
Assente
Condizionamento:
Autonomo
Ascensore:
Mostra tutto
Prezzo Prezzo
€ 349.000
Rata mutuo Rata mutuo
€ 1.647 / mese
Spese annue Spese annue
€ 1.500
Proponi il tuo prezzoProponi il tuo prezzo

Classe Energetica

G
G
G
G
G
G
G
G
G
EP globale non rinnovabile:
175.00 kW h/m² anno
EP invernale del fabbricato:
EP estiva del fabbricato:
Anno di costruzione:
1900
Riscaldamento:
Centralizzato
Tipo impianto:
A radiatori
Tipo alimentazione:
Metano

Ti interessa visionare l'immobile?

Fissa un appuntamento  Fissa un appuntamento

Richiedi informazioni

Clicca su Leggi per aprire l'informativa
* Questi campi sono obbligatori

Calcola il tuo mutuo

Semplice e senza impegno
Anticipo

( % )
Mutuo

( % )

pochi semplici passi

inserisci i tuoi dati
Questionario completato
Grazie per aver richiesto un appuntamento senza impegno con un nostro Consulente del Credito e Assicurativo.

Hai inserito correttamente tutti i dati necessari e a breve riceverai una e-mail con un link da convalidare per inviare i tuoi dati.
Affiliato
Esquilino Mediazioni Srl
Via Di S.Croce In Gerusalemme, 85/A 00185 Roma (RM)

Il nostro staff


  • Emanuele Testa
    Affiliato

  • Marco Valerio Capodiferro
    Affiliato

  • Marco Giordano
    Affiliato

  • Manuela Giuili
    Coordinatrice
Via Di S.Croce In Gerusalemme, 85/A 00185 Roma (RM)
Zona: Centro Storico - Esquilino - Piazza Vittorio - Santa Croce in Gerusalemme
Mostra su mappa
Orari: lunedi-venerdi 9.00 - 13.00 15.30 - 20.00; sabato 9.00 - 13.00
Affiliato
Esquilino Mediazioni Srl
Via Di S.Croce In Gerusalemme, 85/A 00185 Roma (RM)

2025 Tecnocasa Franchising S.p.A. - P. IVA 08365160152 - Via Monte Bianco 60/A 20089 Rozzano (MI). Ogni agenzia ha un proprio titolare ed è autonoma. Privacy policy | Policy utilizzo | Cookie policy