Multilocale in vendita

Roma, Via Carlo Emanuele I - Rione Esquilino
€ 990.000
6 locali 6 locali
190 Mq 190 Mq
2 bagni 2 bagni

Multilocale in vendita

Roma, Via Carlo Emanuele I - Rione Esquilino

Descrizione annuncio

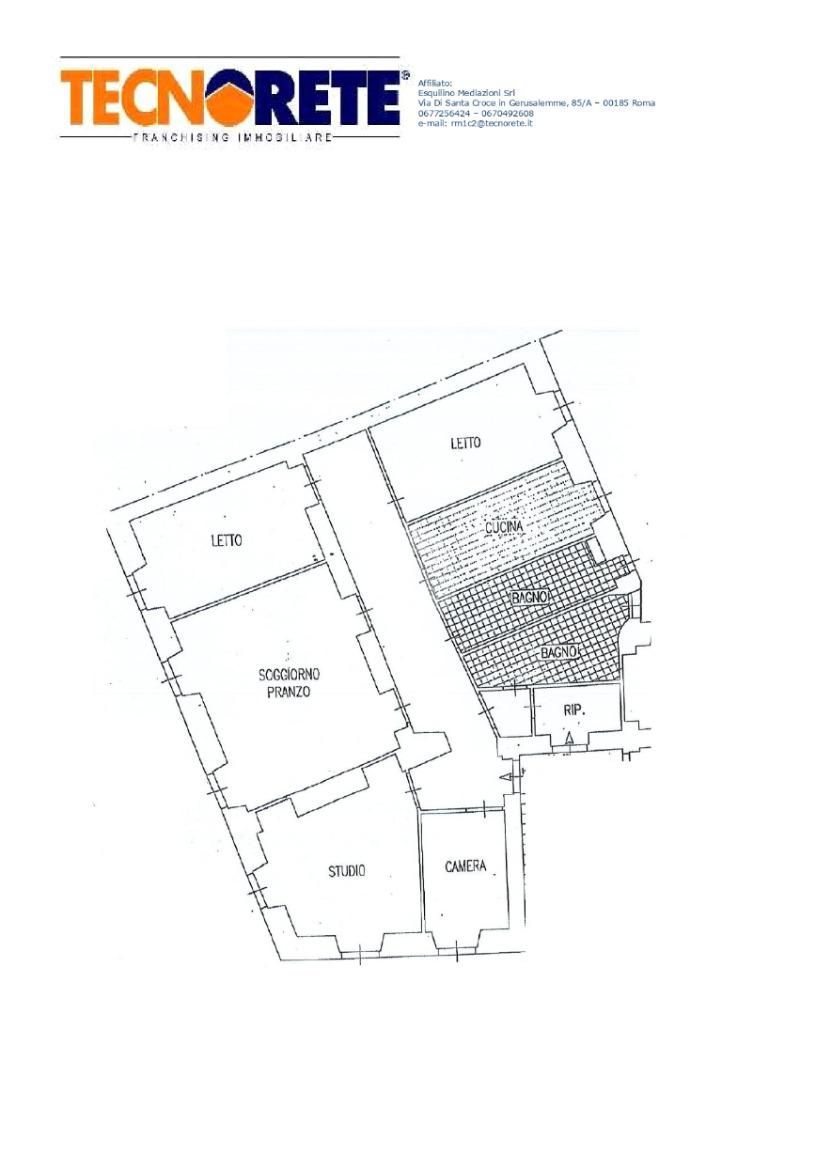
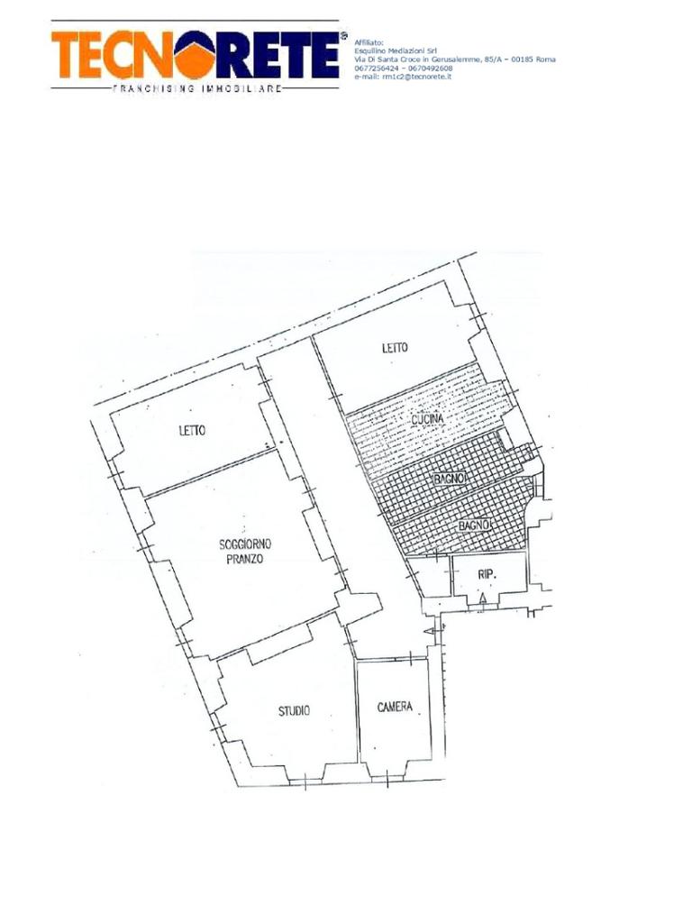
AMPIA METRATURA CON DOPPIO INGRESSO

In Via Carlo Emanuele I, a due passi dal Viale Manzoni e Via Statilia, proponiamo la vendita di una rara occasione per la zona.

L'appartamento, posto al secondo piano di uno stabile d'epoca, si estende su una superficie di circa 190 mq ed è disposto come segue:

Il doppio ingresso conduce ad un corridoio dal quale è possibile accedere a tutti gli ambienti della casa. Sulla sinistra troviamo un salone doppio di circa 30 mq, due camere e lo studio. Sul lato destro invece è presente un'ulteriore stanza da letto, la cucina abitabile, due servizi finestrati e un comodo ripostiglio.

La soluzione, parzialmente ristrutturata nel 2022, è dotata di finestre in doppio vetro PVC in tutti gli ambienti, parquet in tutte le stanze salvo corridoio e cucina dove è stata mantenuta la graniglia originale.

L'appartamento, grazie al triplo affaccio su Via Carlo Emanuele, Via Vittorio Amedeo II e Villa Altieri, è particolarmente luminoso durante tutta la giornata. E' comunque garantita tranquillità e silenzio essendo ubicato in una strada secondaria poco trafficata.

L'immobile al suo interno è costituito quasi totalmente da tramezzi, è quindi possibile ripensare la disposizione interna a seconda delle proprie esigenze. La presenza di un doppio ingresso rende possibile anche la valutazione di un frazionamento in due unità abitative.

Ubicata in zona centrale, a due passi da tutti i maggiori servizi di pubblica, l'appartamento si presta a diversi utilizzi. Ottimo come abitazione principale per famiglie numerose e alla ricerca di una casa di rappresentanza che però non vogliono rinunciare alla comodità che la vicinanza al centro storico offre. Ideale anche per chi cerca un uso investimento da mettere a reddito per brevi o lunghi periodi.

Mostra tutto

Nelle vicinanze

Trasporto pubblico Trasporto pubblico
Manzoni
Manzoni
230 m
Vittorio Emanuele
Vittorio Emanuele
610 m
Santa Bibiana
Santa Bibiana
420 m
Porta Maggiore
Porta Maggiore
480 m
Principe Eugenio/Manzoni
Principe Eugenio/Manzoni
270 m
Ricariche auto elettriche Ricariche auto elettriche
Best Western Hotel President
250 m
Bici & Motori
700 m
Eneldrive Magnagrecia
710 m
Eneldrive Università La Sapienza
1,2 Km
Eneldrive Indipendenza
1,6 Km
Scuole Scuole
Scuola Elementare Federico Di Donato
270 m
Istituto Santa Maria
380 m
Vittorio Central Mosque
440 m
Pontificia Università Antonianum
450 m
Dipartimento di Ingegneria informatica, automatica e gestionale "Antonio Ruberti"
490 m
Farmacia Farmacia
Parafarmaciapiù
260 m
Trecca Mastrangeli
260 m
Farmacia Russino Francesco
350 m
De Sanctis
370 m
Farmacia Strampelli
380 m
Ospedali Ospedali
Azienda Ospedaliera San Giovanni - Addolorata (Presidio Santa Maria)
600 m
Azienda Ospedaliera San Giovanni-Addolorata (Presidio S.Giovanni)
790 m
Pronto Soccorso San Giovanni Addolorata
830 m
Policlinico militare di Roma "Celio"
950 m
Ospedale Militare Celio
1,1 Km
Supermercati Supermercati
Tuodì
100 m
EMME più
250 m
Emme piu
250 m
Pacific trading
410 m
Conad City
410 m
Negozi Negozi
Alimentari Placidi
290 m
Negozi
340 m
Il Fornaio
410 m
Pam local
410 m
Sangiò
480 m
Bar Bar
Leon@rd
130 m
Bar Brindisi
620 m
sMa Bar
630 m
Officine San Giovanni
650 m
Caffè del Parco
790 m
Ristoranti Ristoranti
320 Gradi
260 m
Osteria Romana
260 m
Ristoranti
300 m
Roma Antica
310 m
Hang Zhou
320 m
Mostra tutto

Caratteristiche

Rif.:
61151354
Piano:
2 di 3 (Piano medio)
Camere da letto:
3
Arredamento:
Assente
Condizionamento:
Assente
Ascensore:
No
Mostra tutto
Prezzo Prezzo
€ 990.000
Rata mutuo Rata mutuo
€ 4.673 / mese
Spese annue Spese annue
€ 1.100
Proponi il tuo prezzoProponi il tuo prezzo

Classe Energetica

G
G
G
G
G
G
G
G
G
EP globale non rinnovabile:
175.00 kW h/m² anno
EP invernale del fabbricato:
EP estiva del fabbricato:
Anno di costruzione:
1900
Riscaldamento:
Autonomo
Tipo impianto:
A radiatori
Tipo alimentazione:
Metano

Ti interessa visionare l'immobile?

Fissa un appuntamento  Fissa un appuntamento

Richiedi informazioni

Clicca su Leggi per aprire l'informativa
* Questi campi sono obbligatori

Calcola il tuo mutuo

Semplice e senza impegno
Anticipo

( % )
Mutuo

( % )

pochi semplici passi

inserisci i tuoi dati
Questionario completato
Grazie per aver richiesto un appuntamento senza impegno con un nostro Consulente del Credito e Assicurativo.

Hai inserito correttamente tutti i dati necessari e a breve riceverai una e-mail con un link da convalidare per inviare i tuoi dati.
Affiliato
Esquilino Mediazioni Srl
Via Di S.Croce In Gerusalemme, 85/A 00185 Roma (RM)

Il nostro staff


  • Emanuele Testa
    Affiliato

  • Marco Valerio Capodiferro
    Affiliato

  • Marco Giordano
    Affiliato

  • Manuela Giuili
    Coordinatrice
Via Di S.Croce In Gerusalemme, 85/A 00185 Roma (RM)
Zona: Centro Storico - Esquilino - Piazza Vittorio - Santa Croce in Gerusalemme
Mostra su mappa
Orari: lunedi-venerdi 9.00 - 13.00 15.30 - 20.00; sabato 9.00 - 13.00
Affiliato
Esquilino Mediazioni Srl
Via Di S.Croce In Gerusalemme, 85/A 00185 Roma (RM)

2025 Tecnocasa Franchising S.p.A. - P. IVA 08365160152 - Via Monte Bianco 60/A 20089 Rozzano (MI). Ogni agenzia ha un proprio titolare ed è autonoma. Privacy policy | Policy utilizzo | Cookie policy