Quadrilocale in vendita

Roma, Via Principe Amedeo - Esquilino
€ 540.000
4 locali 4 locali
137 Mq 137 Mq
2 bagni 2 bagni

Quadrilocale in vendita

Roma, Via Principe Amedeo - Esquilino

Descrizione annuncio

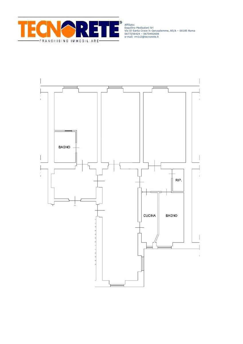
QUARTIERE ESQUILINO - VIA PRINCIPE AMEDEO

In una delle vie piĂš conosciute del quartiere, a poca distanza di Piazza Manfredo Fanti, proponiamo la vendita di un ampio quadrilocale.

L'immobile, posto al quinto piano di uno stabile d'epoca servito da ascensore e portiere, è dotato di doppio ingresso e si estende su una superficie di circa 137 mq. Si compone di soggiorno con doppia finestra, cucinotto comunicante con il soggiorno, tre grandi camere da letto e doppi servizi, uno dei quali all'interno di una delle camere.

La soluzione si presenta totalmente da ristrutturare ed essendo composta quasi unicamente da tramezzi all'interno è possibile ridistribuire gli spazi a seconda delle proprie esigenze. Vista la presenza del doppio ingresso si può valutare anche il frazionamento in due unità abitative.

L'immobile gode di un doppio affaccio, esterno su Principe Amedeo ed interno su cortile, che unito all'altezza del piano, garantisce luminositĂ  e ricambio d'aria costante.

Ubicato in zona centrale, a due passi da tutti i maggiori servizi di pubblica utilità che il quartiere offre, la soluzione è ideale sia per chi è alla ricerca di un'abitazione principale sia per chi vuole fare un investimento sicuro vista la redditività delle locazioni - brevi o a lungo termine - nella zona.

Mostra tutto

Nelle vicinanze

Trasporto pubblico Trasporto pubblico
Vittorio Emanuele
Vittorio Emanuele
340 m
Termini
Termini
480 m
stazione di Roma Termini
stazione di Roma Termini
340 m
Termini Laziali
Termini Laziali
360 m
P.za Vittorio Emanuele (MA)
P.za Vittorio Emanuele (MA)
300 m
Ricariche auto elettriche Ricariche auto elettriche
Eneldrive Indipendenza
710 m
Best Western Hotel President
910 m
Eneldrive Via Torino
910 m
Eneldrive UniversitĂ  La Sapienza
970 m
Roma Barberini 43 | EnelX
1,2 Km
Scuole Scuole
Pontificio Seminario Lombardo
220 m
Accademia Alfonsiana
280 m
Scienze della formazione
510 m
Vittorio Central Mosque
580 m
Scuola Alfredo Baccarini
620 m
Farmacia Farmacia
Farmacia Ricci
30 m
Parafarmacia
150 m
Farmacia
240 m
Farmacia Allo Statuto
290 m
Farmacia Tioli
340 m
Ospedali Ospedali
Azienda Ospedaliera San Giovanni - Addolorata (Presidio Santa Maria)
1,1 Km
Azienda Ospedaliera San Giovanni-Addolorata (Presidio S.Giovanni)
1,3 Km
Ospedale Militare Celio
1,3 Km
Policlinico Universitario Umberto I
1,3 Km
Pronto Soccorso San Giovanni Addolorata
1,3 Km
Supermercati Supermercati
XIN SHI
150 m
Simply market
230 m
TuodĂŹ
360 m
Simply Market
360 m
Asia Supermarket
370 m
Negozi Negozi
Casalinghi
210 m
34
210 m
Kleò
230 m
Coin
250 m
Pitran
260 m
Bar Bar
Mezza Manica
250 m
Pub Aquila Nera
280 m
Bar
300 m
Twins Bar
300 m
Chef Express
440 m
Ristoranti Ristoranti
Cecio
130 m
Fagianetto
180 m
Il Mercato Centrale
180 m
Ristorante La Mensa di Bacco
180 m
La Tavola, il vino e la dispensa
180 m
Mostra tutto

Caratteristiche

Rif.:
61161351
Piano:
5 di 6 con ascensore (Piano alto)
Camere da letto:
3
Arredamento:
Assente
Condizionamento:
Assente
Ascensore:
SĂŹ
Mostra tutto
Prezzo Prezzo
€ 540.000
Rata mutuo Rata mutuo
€ 2.544 / mese
Spese annue Spese annue
€ 1.440
Proponi il tuo prezzoProponi il tuo prezzo

Classe Energetica

G
G
G
G
G
G
G
G
G
EP globale non rinnovabile:
175.00 kW h/m² anno
EP invernale del fabbricato:
EP estiva del fabbricato:
Anno di costruzione:
1900
Riscaldamento:
Centralizzato
Tipo impianto:
A radiatori
Tipo alimentazione:
Metano

Ti interessa visionare l'immobile?

Fissa un appuntamento  Fissa un appuntamento

Richiedi informazioni

Clicca su Leggi per aprire l'informativa
* Questi campi sono obbligatori

Calcola il tuo mutuo

Semplice e senza impegno
Anticipo

( % )
Mutuo

( % )

pochi semplici passi

inserisci i tuoi dati
Questionario completato
Grazie per aver richiesto un appuntamento senza impegno con un nostro Consulente del Credito e Assicurativo.

Hai inserito correttamente tutti i dati necessari e a breve riceverai una e-mail con un link da convalidare per inviare i tuoi dati.
Affiliato
Esquilino Mediazioni Srl
Via Di S.Croce In Gerusalemme, 85/A 00185 Roma (RM)

Il nostro staff


  • Marco Valerio Capodiferro
    Affiliato

  • Marco Giordano
    Affiliato

  • Manuela Giuili
    Coordinatrice
Via Di S.Croce In Gerusalemme, 85/A 00185 Roma (RM)
Zona: Centro Storico - Esquilino - Piazza Vittorio - Santa Croce in Gerusalemme
Mostra su mappa
Orari: lunedi-venerdi 9.00 - 13.00 15.30 - 20.00; sabato 9.00 - 13.00
Affiliato
Esquilino Mediazioni Srl
Via Di S.Croce In Gerusalemme, 85/A 00185 Roma (RM)

2026 Tecnocasa Franchising S.p.A. - P. IVA 08365160152 - Via Monte Bianco 60/A 20089 Rozzano (MI). Ogni agenzia ha un proprio titolare ed è autonoma. Privacy policy | Policy utilizzo | Cookie policy